Explore
Sites
Resources
Images
Events
Periods
People
guest
Log in
Log out
Profile
Resource
Summary
Sites
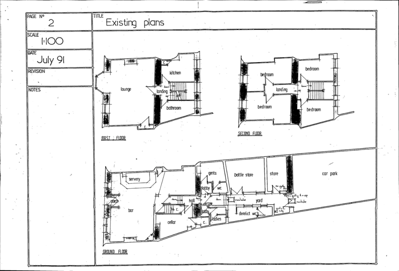
Black Swan Public House
Black Swan Planning application - 1991
Planning applications
Modifications to Black Swan